2680 CEDAR RIDGE Street Unit# Proposed Phase 2 Lot# 1 & 2 Lumby

$1,500,000
2680 CEDAR RIDGE Street Unit# Proposed Phase 2 Lot# 1 & 2 - Photo 1
  • Price$1,500,000
  • MLS #10321471
  • Lot Size1.2 acres
  • WaterMunicipal water
  • SewerMunicipal sewage system
  • ViewMountain view, Valley view
  • Property TypeVacant Land
  • Zoning TypeUnknown
  • Local AmenitiesPark, Recreation, Schools
  • Listing OfficeColdwell Banker Executives Realty

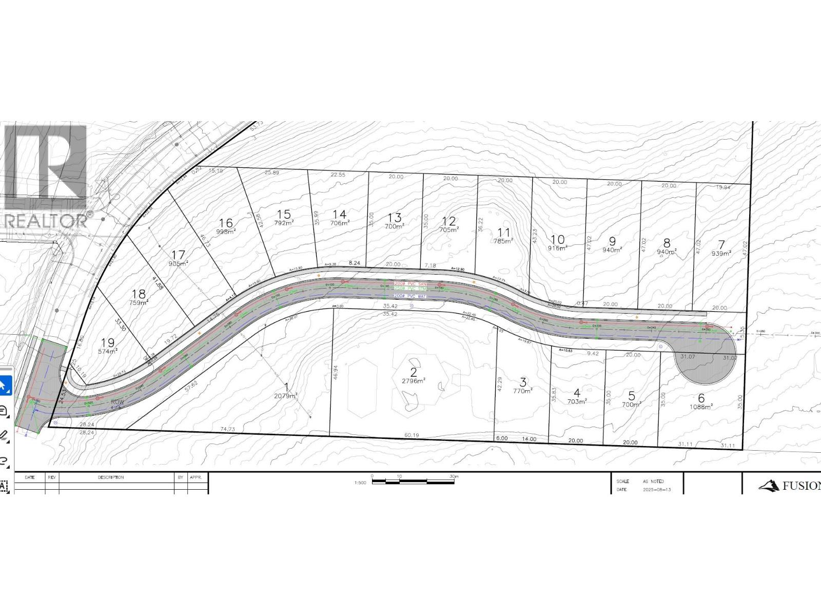
LAND ASSEMBLY – DEVELOPMENT OPPORTUNITY (SUNTOWER SUBDIVISION) Phase 2, Lots 1 and 2 of the Suntower subdivision are now offered as a combined land assembly, presenting an exceptional opportunity for builders, investors, or long-term landholders. Both lots will be delivered with paved road access and full extended city service connections to the lot line, including 400-amp power, municipal water, storm, and sewer, creating a ready-to-build environment. Zoned R7 (Low-Density Residential/RV) within the Regional District of North Okanagan, the site supports single-family, two-family, and secondary-suite development, with a maximum 35% lot coverage and up to 2 storeys (10 m height limit). Based on zoning and lot dimensions, Lot 1 supports an estimated 15,659 Sq. Ft. of potential buildable floor area, while Lot 2 supports approximately 21,070, offering meaningful future redevelopment capacity as demand increases. Lot 2 also includes a beautifully maintained 4,156 sq. ft. log home built in 2004, featuring two primary bedrooms with ensuites, a main three-piece bath, and three generous loft-level bonus rooms. The main floor offers durable tile throughout with efficient in-floor heating powered by a pellet stove, plus a secondary electric option. Both the home and detached garage are finished with long-lasting clay tile roofing (30–80 year lifespan). The property also includes an attached double garage, allowing covered parking for up to five vehicles. This assembly provides strong holding value—ideal for renting out the existing home for 5–10 years to offset carrying costs—while preparing for future redevelopment aligned with the growth and demand of the Suntower subdivision (id:6770)

Calculator Print

Contact Us for More Information

Ready to Meet?

Want more information about the market or the process of buying or selling? Give us a shout! We'd be happy to help.

 

Fill out my online form.