19500 sqft +

1837 Shuswap Avenue Lumby

$6,398,000
1837 Shuswap Avenue - Photo 1
  • Price$6,398,000
  • MLS #10325344
  • Age2019
  • Size19500 sqft
  • Lot Size14.5 acres
  • ExteriorMetal
  • WaterMunicipal water
  • SewerMunicipal sewage system
  • Property TypeIndustrial
  • RoofUnknown
  • Zoning TypeLight industrial
  • Local AmenitiesRecreation, Schools, Shopping
  • Listing OfficeRE/MAX Vernon

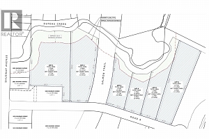
Prime industrial development opportunity – Monashee Light Industrial Park in Lumby. 14 acres of I2 Light Industrial land with an approved 6-lot subdivision plus a state-of-the-art 19,500 sq.ft. facility built in 2019 to food/pharmaceutical-grade standards. The building offers municipal water and sewer, 600V 3-phase power and a fully finished main floor with steel-framed second level, designed to GMP specifications for European export. Foundation for a second building. Subdivision has been approved by the Village of Lumby, with full underground services and road construction in progress. Approved lots range from approximately 1.19–3.90 acres (0.99–2.72 net usable acres), providing flexible options for owner-users or developers. This is one of the largest and most strategic industrial offerings in the North Okanagan – level site, municipal services, I2 zoning and excellent access. Individual titles by mid February. Six lots approved: *Lot 1 has 19,500sq ft Industrial Building built in 2019. 400,000$ per acre of net usable area: • Lot 1: 3.90 acres (1.58 ha), net usable 2.72 acres (1.12 ha) $2,890,000 • Lot 2: 2.88 acres (1.17 ha), net usable 2.51 acres (1.01 ha) $1,004,000 • Lot 3: 1.42 acres (0.58 ha), net usable 1.21 acres (0.49 ha) $484,000 • Lot 4: 1.19 acres (0.48 ha), net usable 0.99 acres (0.40 ha) $396,000 • Lot 5: 1.84 acres (0.74 ha), net usable 1.34 acres (0.54 ha) $536,000 • Lot 6: 2.77 acres (1.12 ha), net usable 2.72 acres (1.12 ha) $1,088,000 (id:6770)

Calculator Print

Contact Us for More Information

Ready to Meet?

Want more information about the market or the process of buying or selling? Give us a shout! We'd be happy to help.

 

Fill out my online form.