1124 sqft + 2 Bed + 2 Bath

2110 Hoy Street Unit# 206 Kelowna

$299,500
2110 Hoy Street Unit# 206 - Photo 1
  • Price$299,500
  • MLS #10340532
  • Age1985
  • Size1124 sqft
  • Lot Size0.9 acres
  • Bedrooms2
  • Bathrooms2
  • CoolingWall unit
  • AppliancesRefrigerator, Dishwasher, Range - Electric, Microwave, Washer & Dryer
  • WaterMunicipal water
  • SewerMunicipal sewage system
  • FlooringCarpeted, Hardwood
  • ViewCity view, Mountain view
  • Property TypeSingle Family
  • Zoning TypeUnknown
  • Stories1
  • Listing OfficeRE/MAX Kelowna

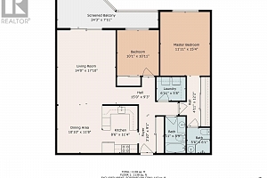
    Main level

    • Laundry room6'11'' x 5'8''
    • 3pc Ensuite bath5'6'' x 6'1''
    • 4pc Bathroom4'11'' x 8'9''
    • Dining room10'10'' x 11'8''
    • Bedroom10'11'' x 10'1''
    • Primary Bedroom15'4'' x 11'11''
    • Kitchen11'4'' x 8'6''
    • Living room17'10'' x 14'0''

    Welcome to your new 2 bedroom, 2 bathroom 55+ updated condo. Your new home is located in a quiet cul de sac close to shopping, restaurants, the hospital, grocery stores, parks and transit. An updated kitchen with newer tile backsplash, pot lights, stainless steel appliances and hardwood flooring is ready for all your meal preparation. Nice light coloured new paint makes your new home welcoming and bright. Both rooms are a good size, with the primary including your own ensuite with an updated vanity. There's a nice enclosed glass deck that faces east, great for your morning coffee or tea. Springfield Manor has a lot to offer with a games room that includes a pool table, card tables and exercise equipment. If you are handy you can tinker about in the well equipped workshop. If being outside is your thing then there is a great community garden as well that you can grow your own vegetables or flowers. Your new home also includes 2 storage lockers and underground parking. Don't wait. Call your favourite Realtor and come take a look at your new home before it's gone. (id:6770)

    Calculator Print

    Contact Us for More Information

    Ready to Meet?

    Want more information about the market or the process of buying or selling? Give us a shout! We'd be happy to help.

     

    Fill out my online form.