4135 sqft + 5 Bed + 5 Bath

2527 Pinnacle Ridge Drive West Kelowna

$1,890,000
2527 Pinnacle Ridge Drive - Photo 1
  • Price$1,890,000
  • MLS #10355190
  • Age2025
  • Size4135 sqft
  • Lot Size0.19 acres
  • Bedrooms5
  • Bathrooms5
  • ExteriorConcrete, Stone
  • CoolingCentral air conditioning, Heat Pump
  • AppliancesRefrigerator, Dishwasher, Dryer, Water Heater - Electric, Freezer, Oven - gas, Humidifier, Microwave, Oven, Hood Fan, Washer & Dryer
  • WaterMunicipal water
  • SewerMunicipal sewage system
  • FlooringHardwood, Tile, Vinyl
  • ViewCity view, Mountain view, View (panoramic)
  • Property TypeSingle Family
  • RoofUnknown
  • Zoning TypeUnknown
  • Local AmenitiesGolf Nearby, Park, Recreation, Shopping
  • Stories3
  • Listing OfficeComFree

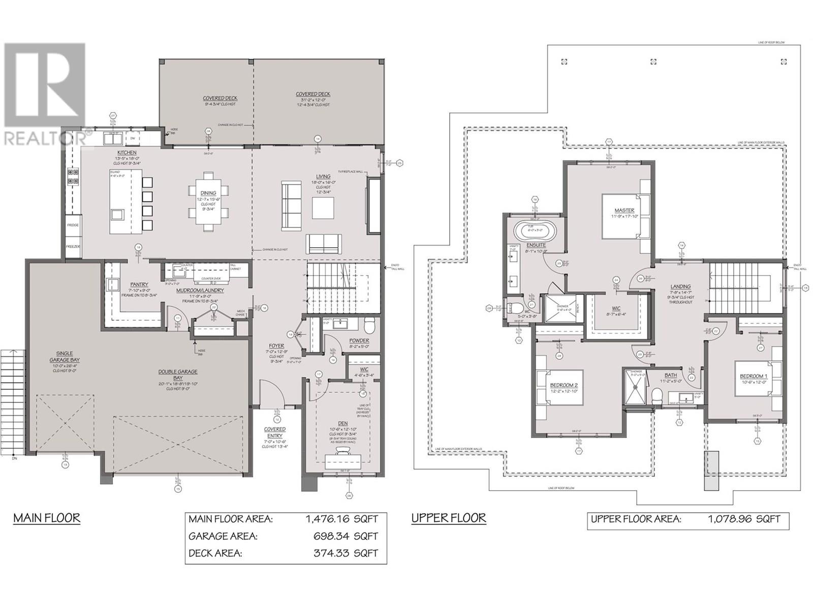
    Lower level

    • Full bathroom8'3'' x 8'4''
    • Recreation room20'2'' x 16'
    • Full bathroom6'5'' x 7'10''
    • Bedroom9'9'' x 14'
    • Bedroom11'0'' x 12'4''

    Main level

    • Living room18' x 16'
    • Dining room18' x 16'
    • Kitchen13'5'' x 18'
    • Mud room11'9'' x 9'0''
    • Foyer7'0'' x 12'9''
    • Partial bathroom8'2'' x 5'0''
    • Den10'6'' x 12'10''
    • Other10'0'' x 26'4''
    • Other20'1'' x 19'10''

    Second level

    • Full bathroom11'10'' x 5'
    • Bedroom12'2'' x 12'10''
    • Bedroom10'6'' x 12'
    • Full ensuite bathroom8'1'' x 10'9''
    • Primary Bedroom8'1'' x 10'9''
    • Other7'8'' x 14'7''

    Welcome to 2527 Pinnacle Ridge Drive in beautiful West Kelowna, BC. This stunning 4,135 sq ft home offers luxury living with a modern, functional floor plan and exceptional attention to detail. Featuring a spacious 3-car garage plus a tandem bay, this home includes a one-bedroom legal suite—perfect for guests or rental income. Built to exceed current code standards, it’s also energy-efficient, using 40% less energy than the average new home (EnerGuide™ rated). Enjoy a large backyard with a private pool complete with an auto-cover, and take in the breathtaking lake and mountain views. Located on a quiet, no-through road just 5 minutes from groceries, schools, and gyms, this property offers both privacy and convenience. Built by award-winning Operon Homes, a licensed BC builder and member of the Canadian Home Builders Association, this home comes with a New Home Warranty (PHW) for peace of mind. Don't miss this rare opportunity to own a high-performance, thoughtfully designed home. (id:6770)

    Calculator Print

    Contact Us for More Information

    Ready to Meet?

    Want more information about the market or the process of buying or selling? Give us a shout! We'd be happy to help.

     

    Fill out my online form.