1791 Lakestone Drive Lake Country

$1,199,900
1791 Lakestone Drive - Photo 1
  • Price$1,199,900
  • MLS #10356642
  • Lot Size0.18 acres
  • WaterMunicipal water
  • SewerMunicipal sewage system
  • ViewLake view, Mountain view, View of water, View (panoramic)
  • Property TypeVacant Land
  • Zoning TypeUnknown
  • Listing OfficeColdwell Banker Executives Realty

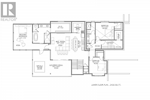
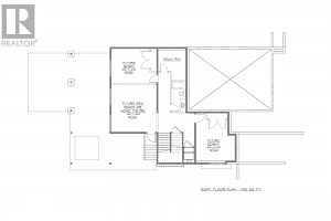
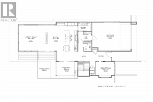
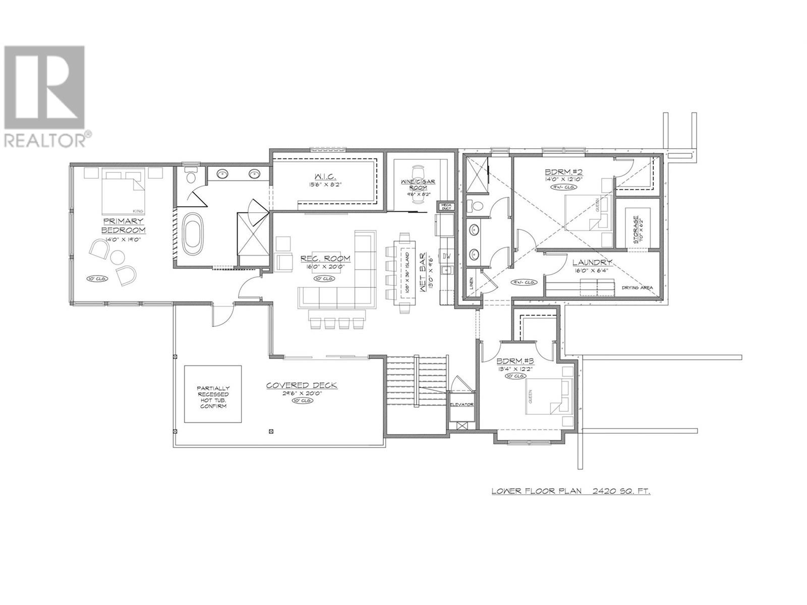
PREMIUM LAKEFRONT LOT ON OKANAGAN LAKE. Build your dream home on this Lakefront lot in LAKESTONE, unobstructed lake views both directions on Okanagan Lake, quiet street, dead end road only 3 more lots past this one. West facing views from this lot allow for amazing Okanagan sunsets and sun all afternoon on the rear of the home, open your patio doors and feel like you can dip your toes in the water. Lakestone is known for a lifestyle of top quality amenities with a multi-million dollar LAKECLUB offering fitness facilities, large heated pool, hot tub spas, tanning loungers, entertain family and friends at the outdoor kitchen, gather around the fireplace and watch the sunset with covered meeting and entertaining spaces. Lakestone also offers multiple tennis/pickleball/multisport courts throughout the community. Phase 1 of Lakestone is almost fully built out and makes this lot a rare offering with a waterfront Lakestone Drive address. Bring your licensed approved builder, plans have received developer approval, or use your own plan. Lakestone is a development for clients with a taste for top quality luxury homes and amenities overlooking Okanagan Lake with easy access to airports, shopping, world class wineries, restaurants, and schools. Kelowna is only a 15 minutes drive and the airport and UBCO is 10 minutes. 2 year timeframe to start building - upon approval. This is a RARE, MUST VIEW LOT, do not miss out on this one, as you cannot replace this lifestyle anywhere else. (id:6770)

Calculator Print

Contact Us for More Information

Ready to Meet?

Want more information about the market or the process of buying or selling? Give us a shout! We'd be happy to help.

 

Fill out my online form.