3406 sqft + 6 Bed + 4 Bath

4540 Lakeshore Road Kelowna

$1,889,000
4540 Lakeshore Road - Photo 1
  • Price$1,889,000
  • MLS #10357870
  • Age1972
  • Size3406 sqft
  • Lot Size0.44 acres
  • Bedrooms6
  • Bathrooms4
  • ExteriorBrick, Other
  • CoolingCentral air conditioning
  • AppliancesRefrigerator, Dishwasher, Dryer, Range - Gas, Washer
  • WaterMunicipal water
  • SewerMunicipal sewage system
  • FlooringCarpeted, Hardwood, Tile, Vinyl
  • Property TypeSingle Family
  • RoofUnknown
  • Zoning TypeUnknown
  • Local AmenitiesGolf Nearby, Recreation, Schools, Shopping
  • Stories2
  • Listing OfficeSotheby's International Realty Canada

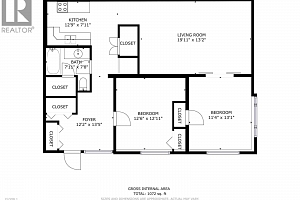
    Basement

    • Bedroom12' x 12'
    • Living room26'3'' x 19'9''
    • 4pc Bathroom7'7'' x 4'9''
    • Bedroom12'7'' x 10'
    • Kitchen12'10'' x 12'7''
    • Foyer10'3'' x 9'9''

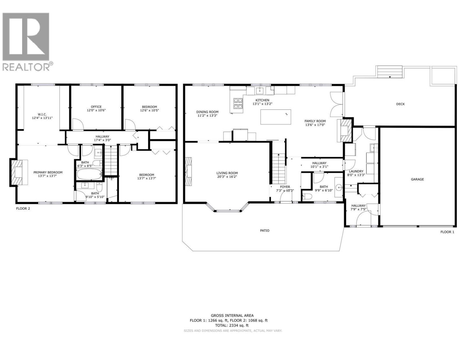
    Main level

    • Foyer10' x 7'
    • Living room19'11'' x 13'10''
    • Dining room13'2'' x 10'11''
    • Kitchen13' x 12'1''
    • Family room16'11'' x 13'3''
    • Partial bathroom7'4'' x 6'7''
    • Laundry room12'11'' x 7'10''
    • Mud room7'6'' x 7'3''

    Second level

    • Bedroom11'10'' x 10'2''
    • 3pc Ensuite bath9'8'' x 5'
    • Primary Bedroom13'7'' x 13'7''
    • 4pc Bathroom8' x 6'3''
    • Bedroom12'3'' x 10'4''
    • Bedroom13'7'' x 13'4''

    This stunning estate home, recently renovated by LUX HOMES, offers the epitome of luxury living in the highly sought-after Lower Mission neighborhood of Kelowna. Situated on almost half an acre of meticulously manicured grounds, this pristine family home provides both ample space and privacy. This tranquil oasis boasts an in-ground pool and hot tub, designed to elevate your lifestyle to new heights. The home's interior highlights timeless elegance and impeccable craftsmanship, with an open design that creates a seamless flow between living spaces. With four bedrooms plus a separate two-bedroom in-law suite and a double-car garage, there is room for everyone. The spacious outdoor deck, barbecue area, and ample seating make this property an entertainer's paradise. Host unforgettable gatherings with family and friends or simply unwind in your own outdoor sanctuary. The beautiful lot has the space, approved zoning, and added parking to easily accommodate a carriage home, a boat, and an RV. In addition, development potential as the city seeks to densify suburban areas; lakeshore has been selected as on of the future areas for a future pilot project for the transit corridor redevelopment. Living in the Lower Mission means you're just a short walk away from some of Kelowna's best schools, dining, entertainment, and beaches. This neighborhood is known for its family-friendly atmosphere and vibrant community, making it the perfect place to call home. (id:6770)

    Calculator Print

    Contact Us for More Information

    Ready to Meet?

    Want more information about the market or the process of buying or selling? Give us a shout! We'd be happy to help.

     

    Fill out my online form.