453 Morrison Avenue

453 Morrison Avenue

Kelowna, British Columbia

$1,790,000
6350 sqft SQ FT

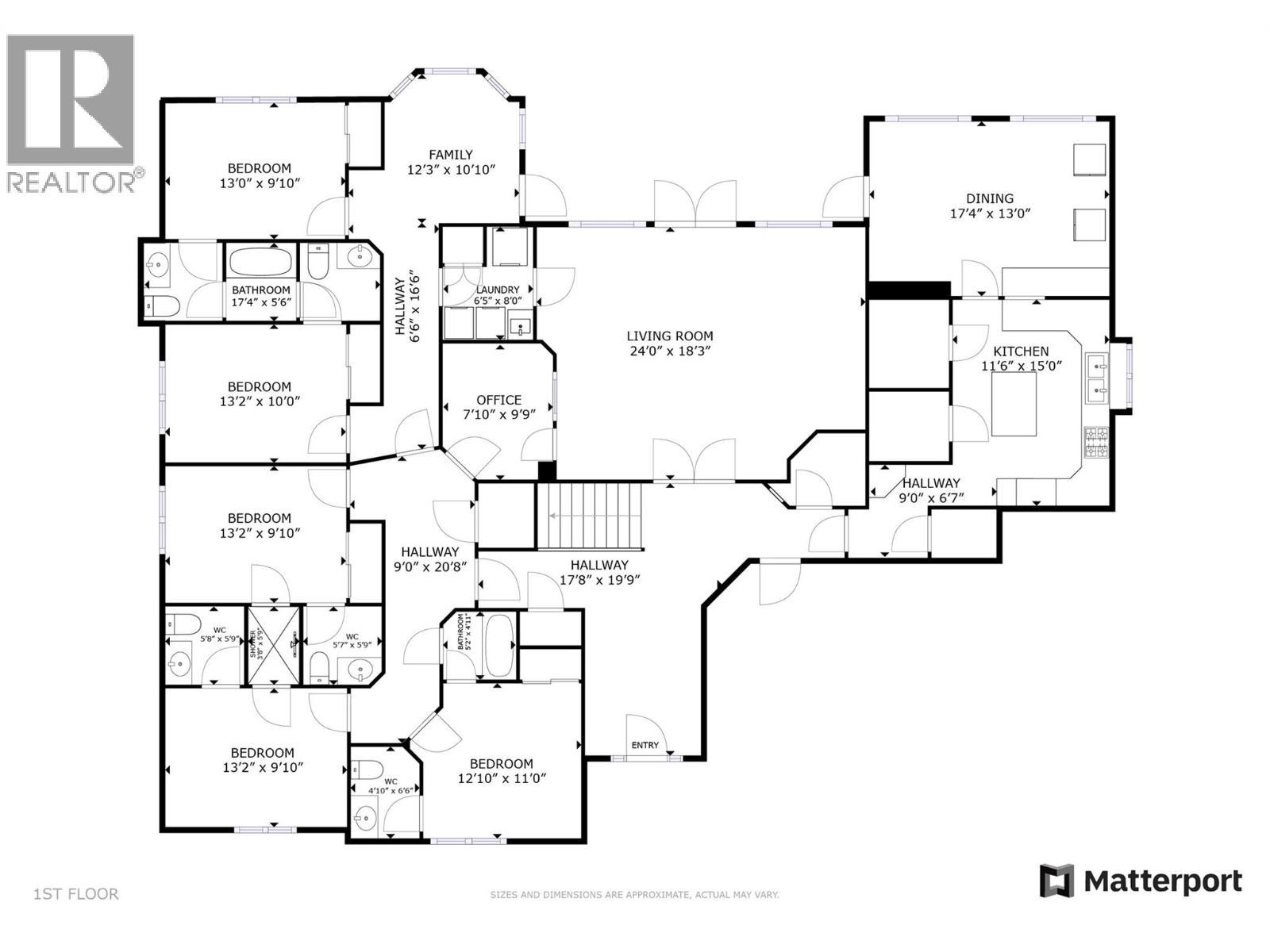
Property Description

Situated on a large .2-acre lot, this property is currently zoned MF1B with C-NHD future zoning, opening doors to lucrative development opportunities and ensuring value appreciation over time. With potential for various business opportunities such as boarding or lodging houses, group homes, childcare, home-based businesses, care homes, senior centers, and more, the possibilities are endless. This cash flow rental property boasts an enviable location just steps away from the beach & Kelowna General Hospital. Featuring an impressive layout of 12 bedrooms & 14 bathrooms spread over 6,350 sq ft of living space, this property offers endless investment possibilities. Fully rented and Fully property managed, there are shared kitchen, laundry room, lobby, dining room, entertainment space, outdoor BBQ, manager's suite (with kitchen) etc. This investment guarantees an immediate stream of income, fueling your financial aspirations from day one. And let's not forget about the unbeatable location – nestled within Pandosy Village, you'll be surrounded by commercial retails, restaurants, parks, and the tranquil beach just a block away. This investment isn't just about immediate returns; it's about securing your future in one of Kelowna's most sought-after areas. Don't miss out on this rare opportunity to invest in both cash flow and future development potential in Kelowna's premier neighborhood. (id:6770)

Overview

Price $ 1,790,000
MLS # 10360138
Age 1996
Size 6350 sqft
Lot Size 0.2 acres
Exterior Stucco
Cooling Central air conditioning
Water Municipal water
Sewer Municipal sewage system
Property Type Other
Roof Unknown
Zoning Type Unknown
Local Amenities Public Transit, Park, Recreation, Schools, Shopping
Listing Office Oakwyn Realty Okanagan-Letnick Estates
Contact Us for More Information

Property Information

453 Morrison Avenue, Kelowna

Price: $1,790,000

Property Type: Other

Building Type: Other

MLS #: 10360138

Begin Your Journey

Whether you seek a waterfront sanctuary or an architectural masterpiece, let us guide you home.

Fill out my online form.