60 Pringle Road

60 Pringle Road

Carmi, British Columbia

$1,200,000
2100 sqft SQ FT
2 BED
3 BATH

Property Description

Looking to get out of the hustle and bustle? Nestled on 1.26 acres of serene riverfront, this beautifully designed 2,100 sq. ft. custom home with an attached 1,900 sq. ft. workshop, offers a perfect blend of luxury, functionality, and peaceful living. The home features 10 ft ceilings, Fir flooring and trim, 2 bedrooms, 3 bathrooms. The huge island kitchen boasts granite countertops, a large walk in pantry, and 39inch deep countertops, ideal for cooking, entertaining, and storage. The entire home is designed for comfort with an efficient wood stove supplemented by electric forced air floor vents, along with a heated concrete crawl space for added energy efficiency. Exterior features include a custom chicken coup, garden areas and a fully deer fenced perimeter. Low-maintenance metal roof and siding ensure durability and easy upkeep. A 30+ GPM well with a 3-phase constant pressure system and a 3-second hot water delay guarantees reliable water supply and instant hot water, while exterior hot water bibs add convenience for outdoor tasks. The attached workshop offers 14 ft ceilings, a 12 ft bay door, a vented paint room, and a half bathroom making it perfect for a business or hobbies. The detached garage adds extra space for vehicles and storage. A large insulated stamped concrete patio provides a relaxing area to enjoy the summer evenings with potential to expand the interior living area, Don’t miss this rare opportunity! (id:6770)

Overview

Price $ 1,200,000
MLS # 10326486
Age 2009
Size 2100 sqft
Lot Size 1.26 acres
Bedrooms 2
Bathrooms 3
Exterior Metal, Stone
Appliances Refrigerator, Dishwasher, Range - Gas, Washer & Dryer
Water Well
Sewer Septic tank
Flooring Hardwood
Property Type Single Family
Roof Unknown
Zoning Type Unknown
Stories 1
Listing Office Century 21 Assurance Realty Ltd

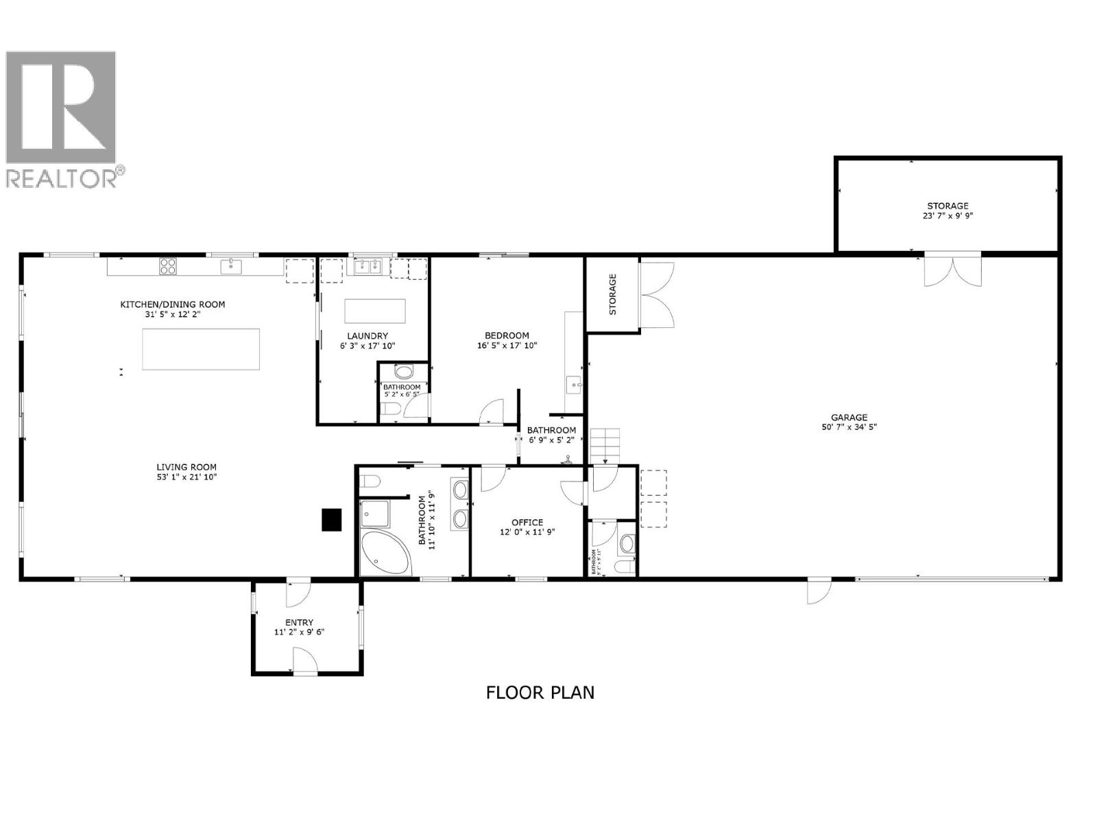
Main level

Partial bathroom Measurements not available
Other 23'7'' x 9'9''
Workshop 50'7'' x 34'5''
Pantry 6'3'' x 17'10''
Bedroom 12' x 11'9''
Full ensuite bathroom Measurements not available
Full bathroom Measurements not available
Foyer 11'2'' x 9'6''
Primary Bedroom 16'5'' x 17'10''
Living room 53'1'' x 21'10''
Kitchen 31'5'' x 12'2''
Contact Us for More Information

Property Information

60 Pringle Road, Carmi

Price: $1,200,000

Property Type: Single Family

Building Type: House

MLS #: 10326486

Begin Your Journey

Whether you seek a waterfront sanctuary or an architectural masterpiece, let us guide you home.

Fill out my online form.