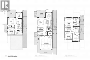
5033 sqft + 8 Bed + 7 Bath

7005/7013 Manning Place Vernon

$1,749,998
7005/7013 Manning Place - Photo 1
  • Price$1,749,998
  • MLS #10364381
  • Age2026
  • Size5033 sqft
  • Lot Size0.18 acres
  • Bedrooms8
  • Bathrooms7
  • ExteriorStucco
  • CoolingCentral air conditioning
  • WaterMunicipal water
  • SewerMunicipal sewage system
  • FlooringVinyl
  • ViewMountain view, Valley view, View (panoramic)
  • Property TypeSingle Family
  • RoofUnknown
  • Zoning TypeUnknown
  • Stories3
  • Listing OfficeRE/MAX Vernon

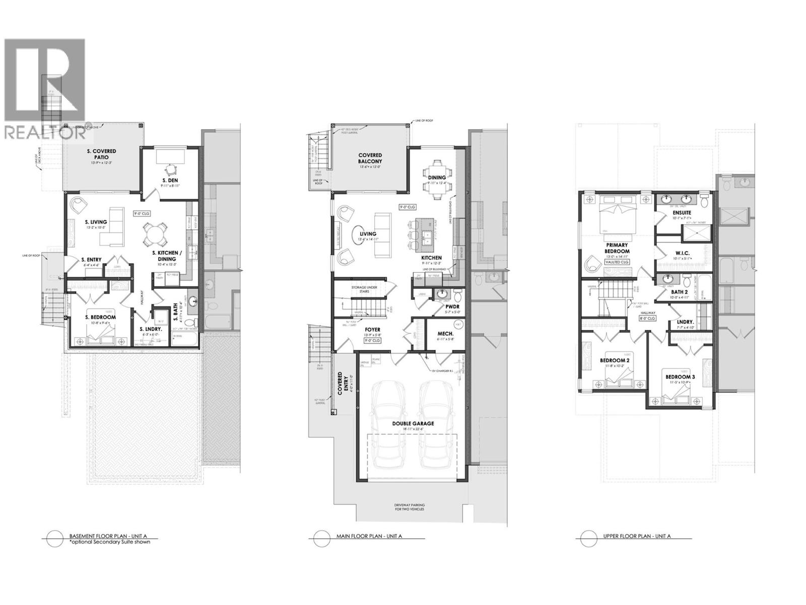
    Additional Accommodation

    • Kitchen15'3'' x 10'4''
    • Other14'1'' x 12'0''
    • Bedroom9'11'' x 8'11''
    • Other6'7'' x 6'3''
    • Full bathroom10'4'' x 4'11''
    • Primary Bedroom10'8'' x 9'5''
    • Other6'4'' x 4'2''
    • Living room13'2'' x 10'11''
    • Kitchen15'3'' x 10'4''

    Lower level

    • Other14'1'' x 12'0''

    Main level

    • Other22'6'' x 18'11''
    • Other6'11'' x 5'8''
    • Other14'1'' x 12'0''
    • 2pc Bathroom5'7'' x 5'0''
    • Foyer13'9'' x 5'8''
    • Dining room12'7'' x 9'11''
    • Living room15'1'' x 13'6''
    • Kitchen12'0'' x 9'11''
    • Other22'6'' x 18'11''
    • Other6'11'' x 5'8''
    • Other14'1'' x 12'0''
    • Partial bathroom5'7'' x 5'0''
    • Foyer13'9'' x 5'8''
    • Dining room12'7'' x 9'11''
    • Living room15'1'' x 13'6''
    • Kitchen12'0'' x 9'11''

    Second level

    • Other10'1'' x 5'1''
    • Laundry room7'7'' x 4'10''
    • 4pc Bathroom10'1'' x 4'11''
    • Bedroom11'5'' x 10'9''
    • Bedroom11'8'' x 10'2''
    • 4pc Ensuite bath10'1'' x 8'5''
    • Primary Bedroom15'1'' x 13'0''
    • Other10'1'' x 5'1''
    • Laundry room7'7'' x 4'10''
    • 4pc Bathroom10'1'' x 4'11''
    • Bedroom11'5'' x 10'9''
    • Bedroom11'8'' x 10'2''
    • 4pc Ensuite bath10'1'' x 8'5''
    • Primary Bedroom15'1'' x 13'0''

    Exceptional Investment Opportunity!!!! This Brand New Full Duplex with 2 Legal suites is Located in the Foothills Newest subdivision at Manning place. Each side has 3 Bedrms on the upper level, Kitchen, Living, Dining on the main level and walk-out basement with 2 bedroom or 1 bedrm+ Den suite, making this a 8/10 bedrm Revenue Propert!!. The open floor plans with electric fireplace, kitchen island & dining off covered sundeck offers the ideal ambiance for entertaining. Upstairs you'll find all 3 bedrms each side. Primary has 4 piece ensuite with heated floor, double vanity & shower, as well as a large walk-in closet. The walk-out basement has 2 bedrooms or 1 bdrm + Den, covered patio and fully self-contained. 2 double garages, fully fenced, landscaped & retaining included. Projected income of $11,000/month ($3500 for main units X 2,$2000 for suites X 2) give this a CAP rate of just over 7%!!! The rural feel, ease of living and convenience to town, schools and the ski hill will appeal to excellent tenants and Owners alike. Great investment & the ease of owning New Construction with Home Warranty for piece of mind!!! GST is applicable. (id:6770)

    Calculator Print

    Contact Us for More Information

    Ready to Meet?

    Want more information about the market or the process of buying or selling? Give us a shout! We'd be happy to help.

     

    Fill out my online form.