6016 sqft + 5 Bed + 4 Bath

5090 Ash Road Kelowna

$2,095,000
5090 Ash Road - Photo 1
  • Price$2,095,000
  • MLS #10366391
  • Age1976
  • Size6016 sqft
  • Lot Size0.93 acres
  • Bedrooms5
  • Bathrooms4
  • ExteriorBrick, Wood
  • AppliancesRefrigerator, Dishwasher, Dryer, Cooktop - Electric, Water Heater - Electric, Washer & Dryer, Water softener, Oven - Built-In
  • WaterWell
  • SewerMunicipal sewage system
  • ViewCity view, Lake view, Mountain view, View (panoramic)
  • Property TypeSingle Family
  • RoofUnknown
  • Zoning TypeUnknown
  • Stories2
  • Listing OfficeRoyal LePage Kelowna

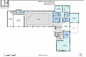
    Basement

    • Recreation room18'2'' x 23'8''
    • Utility room10'8'' x 12'
    • Utility room27' x 15'11''
    • Workshop27' x 13'11''
    • 5pc Bathroom8'10'' x 8'1''
    • Bedroom14' x 13'11''
    • Bedroom16'9'' x 15'9''
    • Bedroom13'11'' x 11'4''

    Main level

    • 3pc Bathroom7'7'' x 8'2''
    • Sauna6' x 5'
    • Other52'1'' x 28'4''
    • Den11'6'' x 13'1''
    • Bedroom11'6'' x 13'1''
    • 4pc Bathroom6'7'' x 9'1''
    • Pantry7' x 7'
    • Laundry room13' x 13'
    • Foyer14'5'' x 12'7''
    • 4pc Ensuite bath6'7'' x 9'6''
    • Primary Bedroom15'8'' x 16'7''
    • Family room18'4'' x 18'1''
    • Living room23'5'' x 23'11''
    • Dining room12'3'' x 11'11''
    • Kitchen17'2'' x 13'6''

    RARE EXECUTIVE ARCHITECTURALLY DESIGNED 6960 SF CONTEMPORARY ESTATE RANCHER WALKOUT, with INDOOR 20x40 CONCRETE POOL, TRIPLE GARAGE ON .93 ACRE OLD GROWTH Treed Lot with VIEW OF LAKE! 1st time on market! This Sprawling custom designed Rancher is sure to impress, full large brick exterior, concrete tile roof. While it is a walk into yesteryear decor, it is timeless in solid quality built construction and design. Big spacious rooms offer tons of potential for great for entertaining and family life! 3 Brick fireplaces, easy flo floor plan. Large inviting Entry with open stairs down greets you. Massive living room with 2 picture windows, classic sculpted carpets, enjoys a stunning View of the large grounds, Lake, Westside and even Bridge. Extra Large floor to ceiling Brick real wood fireplace. Big Dining room with picture window to View and solid wood pass door to Kitchen. Country sized wood kitchen with built in's, window over sink to View, with open plan to adjacent family room with Brick gas fireplace and glass sliding door to front private courtyard. Large semi-covered Deck. 1469 SF Laminate Wood beamed Dive depth Concrete Pool and swirl pool area with solar heat will impress you! 2 Beds plus den up, 3 bedrooms down. Large Rec Room with Wood fireplace. Huge Workshop area, tons of storage. 600 amp service! Drilled private well, city connection avail. Huge driveway welcomes you, Courtyard parking area. Home is ""as is where is"" but great bones, ready for your ideas. (id:6770)

    Calculator Print

    Contact Us for More Information

    Ready to Meet?

    Want more information about the market or the process of buying or selling? Give us a shout! We'd be happy to help.

     

    Fill out my online form.