2348 sqft + 3 Bed + 3 Bath

3278 Webber Road West Kelowna

$758,800
3278 Webber Road - Photo 1
  • Price$758,800
  • MLS #10367324
  • Age1973
  • Size2348 sqft
  • Lot Size0.22 acres
  • Bedrooms3
  • Bathrooms3
  • ExteriorVinyl siding
  • CoolingCentral air conditioning
  • WaterMunicipal water
  • SewerMunicipal sewage system
  • ViewMountain view
  • Property TypeSingle Family
  • RoofUnknown
  • Zoning TypeUnknown
  • Local AmenitiesPark, Recreation, Schools
  • Stories1
  • Listing OfficeCentury 21 Assurance Realty Ltd

    Basement

    • 3pc Bathroom11' x 6'
    • Family room11' x 15'11''
    • Hobby room11'6'' x 7'8''
    • Laundry room8'8'' x 11'5''

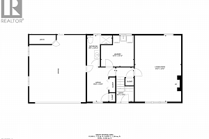
    Main level

    • Bedroom10'3'' x 11'2''
    • 3pc Ensuite bathMeasurements not available
    • Primary Bedroom11'1'' x 14'8''
    • Bedroom10'9'' x 10'0''
    • 4pc BathroomMeasurements not available
    • Living room13'3'' x 17'1''
    • Dining room9'11'' x 11'3''
    • Kitchen13'1'' x 11'0''

    PRICE REDUCED!!! BRING THE FAMILY!! Tastefully updated throughout. 3 BDRMS on the main floor. Vinyl Plank flooring up and down along with tastefully updated painting and trim. New kitchen backsplash. Updated sinks and toilets. Updated ensuite. Freshly smooth painted ceilings. Updated doors and closet doors. Updated HWT, Furnace. Lower level offers the possibility for a suite. A generous family room, full bathroom and hobby room. Updated lighting throughout. Single car garage/shop, Insulated. Tons of parking out front including RV parking. The rear yard offers a beautiful firepit area, gazebo, storage shed and fully fenced. there is even a ""Catio"" under the sundeck. Roof is only 10 yrs old. Sewer levy is $520.97/yr until 2027. Portable Greenhouse is negotiable. Extra insulation was installed in ceiling to R40 in 2019. Main water line updated to home. Close to schools, transportation, parks and trails. Affordable West Kelowna living, 5 minutes to town. All information and measurements deemed approximate only and should be verified by the Buyer(s) agent(s). (id:6770)

    Calculator Print

    Contact Us for More Information

    Ready to Meet?

    Want more information about the market or the process of buying or selling? Give us a shout! We'd be happy to help.

     

    Fill out my online form.