3434 McKinley Beach Drive Unit# 408

3434 McKinley Beach Drive Unit# 408

Kelowna, British Columbia

$2,600,000
2308 sqft SQ FT
2 BED
3 BATH

Property Description

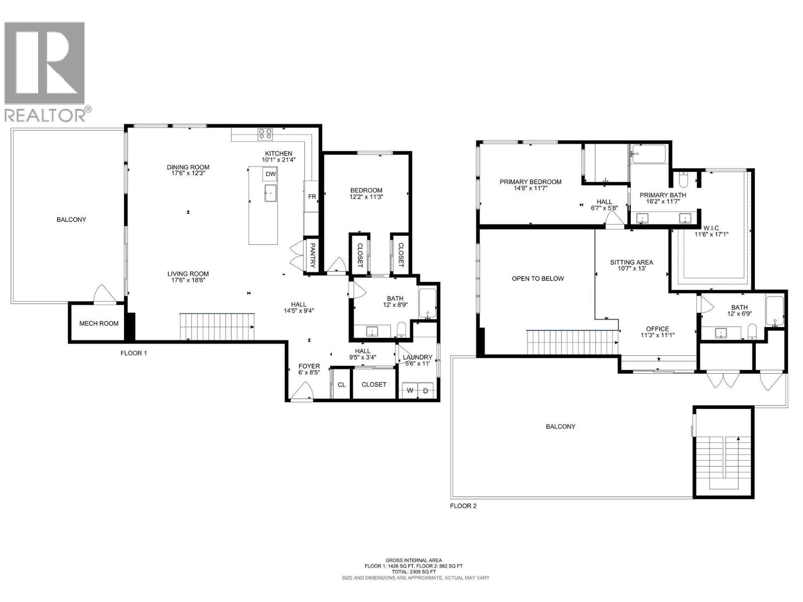
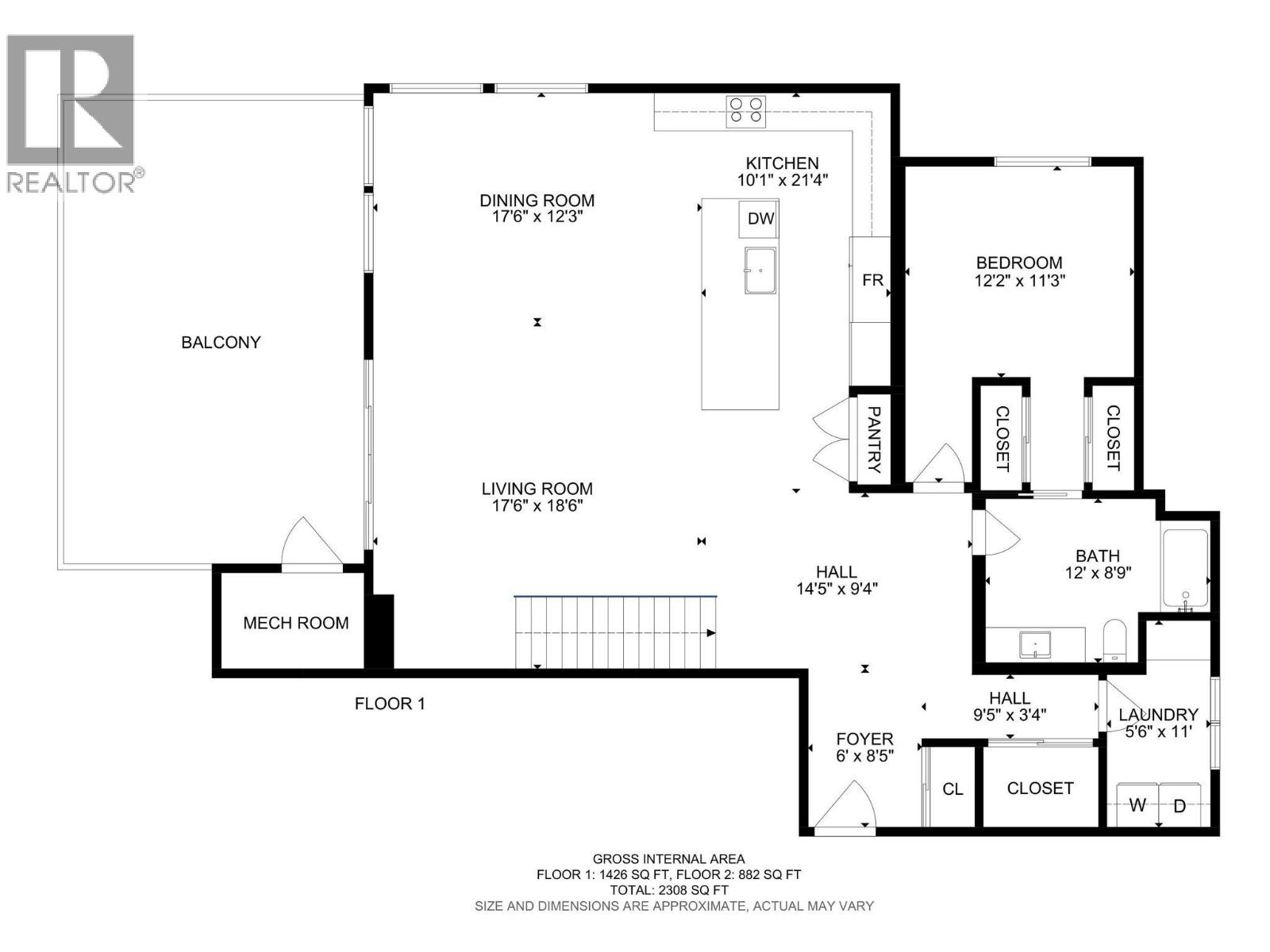
Experience luxury lakeside living in this brand-new modern penthouse in Granite III at McKinley Beach. Panoramic Okanagan Lake views set the tone the moment you walk in, framed by soaring vaulted ceilings and floor-to-ceiling windows that fill the open-concept space with natural light. The gourmet kitchen features an entertainment-sized island with wine fridge, high-gloss cabinetry, and professional-grade appliances. The great room flows onto a spacious lake-view terrace, perfect for outdoor dining, complete with built-in heaters for year-round comfort. This level also includes a generous bedroom with its own ensuite, all with heated tile floors. A dramatic two-storey tiled feature wall borders the floating glass staircase leading to the loft-style upper lounge, ideal as a reading nook, media room, or office. Voice-activated automatic blinds enhance comfort throughout. The primary suite is a private retreat, offering unobstructed lake views, a designer walk-in closet, and a stunning 5-piece marble ensuite with steam shower and heated tiles. The expansive rooftop terrace features an automated louvred roof with built-in fans, grilling area, hot-tub rough-in, and terrace heaters, creating an unmatched outdoor oasis. Steps from the sandy beach, marina, trails, parks, tennis courts, and outdoor gym, Granite residents also enjoy a sauna and outdoor pool. Three parking stalls sit conveniently next to the elevator. This penthouse delivers Okanagan luxury at its finest. (id:6770)

Overview

Price $ 2,600,000
MLS # 10369712
Age 2023
Size 2308 sqft
Lot Size 0.9 acres
Bedrooms 2
Bathrooms 3
Cooling Central air conditioning
Appliances Refrigerator, Dishwasher, Dryer, Range - Electric, Microwave, Washer, Oven - Built-In
Water Irrigation District
Sewer Municipal sewage system
View Lake view, Mountain view, Valley view, View (panoramic)
Property Type Single Family
Roof Unknown
Local Amenities Golf Nearby, Park
Stories 2
Listing Office Oakwyn Realty Okanagan-Letnick Estates

Main level

Dining room 17'6'' x 12'3''
Living room 18'6'' x 17'6''
Laundry room 11' x 5'6''
Kitchen 21'4'' x 11'1''
Bedroom 11'3'' x 12'2''
4pc Bathroom 8'9'' x 12'0''

Second level

Other 17'1'' x 11'6''
Primary Bedroom 11'7'' x 14'8''
5pc Ensuite bath 11'7'' x 16'2''
4pc Bathroom 6'9'' x 12'0''
Contact Us for More Information

Property Information

3434 McKinley Beach Drive Unit# 408, Kelowna

Price: $2,600,000

Property Type: Single Family

Building Type: Apartment

MLS #: 10369712

Begin Your Journey

Whether you seek a waterfront sanctuary or an architectural masterpiece, let us guide you home.

Fill out my online form.