8900 Jim Bailey Road Unit# 112

8900 Jim Bailey Road Unit# 112

Kelowna, British Columbia

$453,800
1356 sqft SQ FT
3 BED
2 BATH

Property Description

Welcome to Deer Meadows. Your new neighbourhood is conveniently located just steps away from the Rail Trial where you are connected to Wood lake and the blue waters of Kalamalka lake with trail access spanning from Vernon to Kelowna. Deer Meadows is a quick 10 minute commute from the Airport and UBCO's Campus. Rentals and pets are allowed. This Skylark home is built by Woodland Crafted Homes and features a modern layout. With a unique exterior, the 3 bedroom, 2 bathroom home design is created for those that want it all. Entering to the open-concept Kitchen, you walk through a bright front patio and are met with the highly coveted seamless living/dining space. Guest room and spacious Master Bedroom at the back of the house means optimized space distribution. Base price comes with a carport and may be upgraded to a garage. The secluded Backyard Patio opens off the beautiful Master Bedroom to ensure these homeowners get every bit of sunshine that the Okanagan has to offer. SHORT TERM RENTALS PERMITTED. Schedule your appointment today! (id:6770)

Overview

Price $ 453,800
MLS # 10370255
Age 2025
Size 1356 sqft
Lot Size 0.9 acres
Bedrooms 3
Bathrooms 2
Exterior Stone, Stucco
Cooling Central air conditioning
Appliances Refrigerator, Dishwasher, Range - Electric, Microwave
Water Well
Sewer Septic tank
Flooring Vinyl
Property Type Single Family
Roof Unknown
Stories 1
Listing Office RE/MAX Kelowna

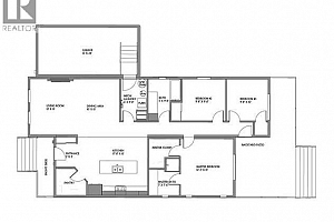
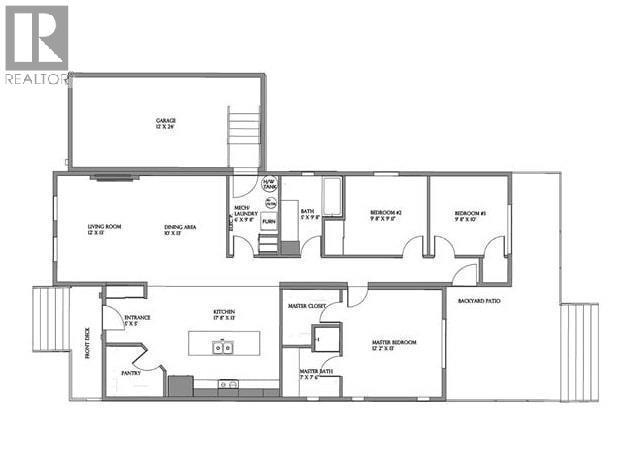
Main level

3pc Ensuite bath 7' x 7'6''
Primary Bedroom 12'2'' x 13'
Bedroom 9'6'' x 13'
Bedroom 9'8'' x 10'
4pc Bathroom 5' x 9'8''
Laundry room 6' x 9'8''
Dining room 10' x 13'
Living room 12' x 13'
Kitchen 17' x 13'
Foyer 5' x 5'
Contact Us for More Information

Property Information

8900 Jim Bailey Road Unit# 112, Kelowna

Price: $453,800

Property Type: Single Family

Building Type: Manufactured Home

MLS #: 10370255

Begin Your Journey

Whether you seek a waterfront sanctuary or an architectural masterpiece, let us guide you home.

Fill out my online form.