2034 sqft + 3 Bed + 4 Bath

218 Glen Park Drive Unit# 21 Kelowna

$729,000
218 Glen Park Drive Unit# 21 - Photo 1
  • Price$729,000
  • MLS #10370768
  • Age2008
  • Size2034 sqft
  • Lot Size0.9 acres
  • Bedrooms3
  • Bathrooms4
  • ExteriorStucco
  • CoolingCentral air conditioning
  • AppliancesRefrigerator, Dishwasher, Dryer, Range - Electric, Microwave, Washer
  • WaterMunicipal water
  • SewerMunicipal sewage system
  • FlooringCarpeted, Ceramic Tile
  • ViewMountain view
  • Property TypeSingle Family
  • RoofUnknown
  • Stories3
  • Listing OfficeColdwell Banker Executives Realty

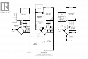
    Basement

    • 3pc Bathroom4'11'' x 6'7''
    • Bedroom9'10'' x 8'6''
    • Laundry room5'8'' x 10'8''
    • Recreation room15'9'' x 15'0''

    Main level

    • Other21'0'' x 17'4''
    • Other11'2'' x 21'7''
    • Other9'4'' x 9'6''
    • Other9'9'' x 5'9''
    • Partial bathroom3'1'' x 7'3''
    • Kitchen13'10'' x 10'4''
    • Dining room9'10'' x 10'9''
    • Living room12'1'' x 15'4''

    Second level

    • Bedroom11'4'' x 9'11''
    • 3pc Bathroom7'10'' x 5'3''
    • Office9'6'' x 9'9''
    • 3pc Ensuite bath9'6'' x 5'4''
    • Other9'6'' x 4'9''
    • Primary Bedroom12'0'' x 15'8''

    This 3 level Townhome in the Heart of Glenmore is the perfect family home, located just down the street from all the essentials: groceries, shopping, schools and more! Entering on the main level, you are greeted by the open living room with a cozy gas fireplace and large windows that let in lots of natural light. The wrap around kitchen boasts a dine-up bar, Stainless Appliances, pantry closet and no shortage of cupboard space. Open to the kitchen, the dining room enjoys a peaceful view looking over the backyard, as well as access to the covered deck - perfect for BBQing rain or shine! Walk down from the deck to the lower level backyard for a great sitting area. The main level also features a convenient powder room for guests with outside access to the attached garage. Upstairs there are 3 spacious bedrooms and 2 full bathrooms, including the primary suite with its own closet + walk in closet and private 3-piece ensuite. The basement is home to the large rec room, a 4-piece bathroom, utility room and laundry room with lots of additional space for storage. The oversized garage has extra high ceilings and this unit is one of only 4 with an oversized door to fit in the larger vehicles such as a truck with no worries. (id:6770)

    Calculator Print

    Contact Us for More Information

    Ready to Meet?

    Want more information about the market or the process of buying or selling? Give us a shout! We'd be happy to help.

     

    Fill out my online form.