1 Bed + 1 Bath

3514 CASORSO Road Kelowna

$975,000
3514 CASORSO Road - Photo 1
  • Price$975,000
  • MLS #10370830
  • Age1970
  • Lot Size0.15 acres
  • Bedrooms1
  • Bathrooms1
  • WaterMunicipal water
  • SewerMunicipal sewage system
  • Property TypeSingle Family
  • Local AmenitiesGolf Nearby, Public Transit, Park, Recreation, Schools, Shopping
  • Stories1
  • Listing OfficeRE/MAX Kelowna - Stone Sisters

    Main level

    • Full bathroom' x '
    • Living room' x '
    • Primary Bedroom' x '
    • Kitchen' x '

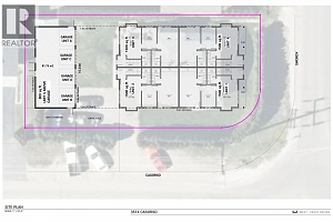
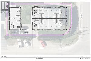
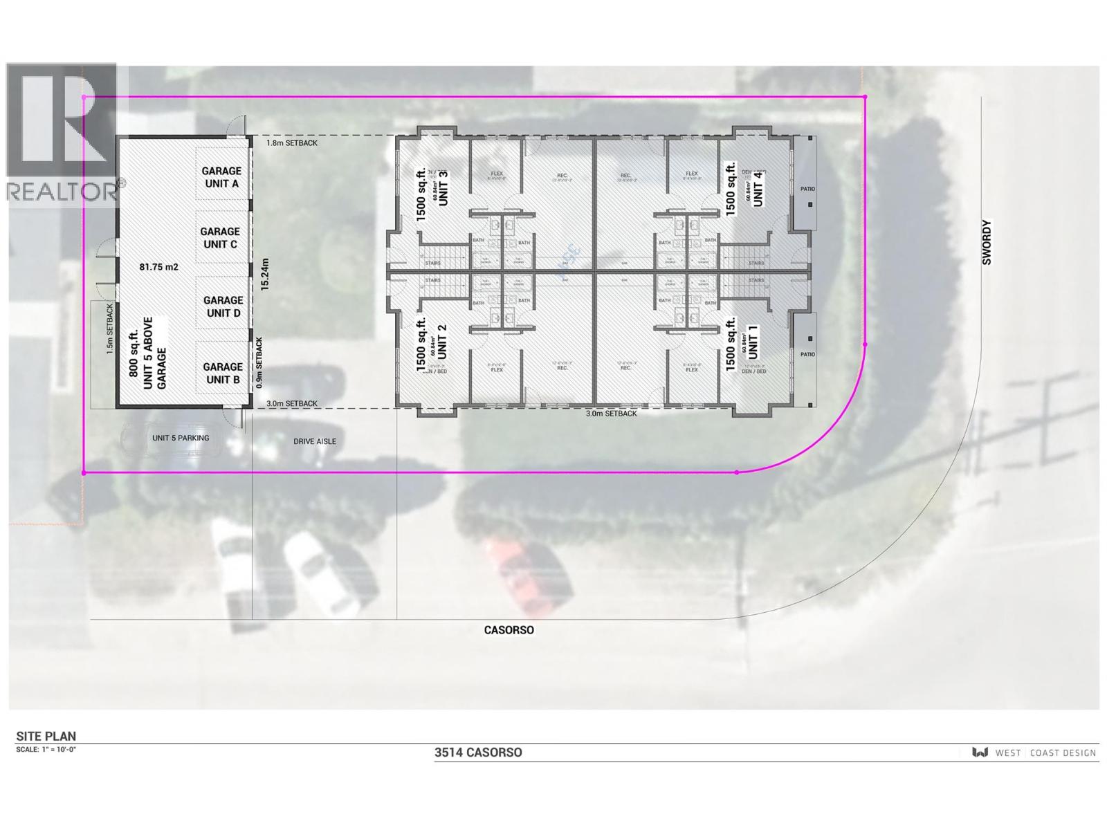
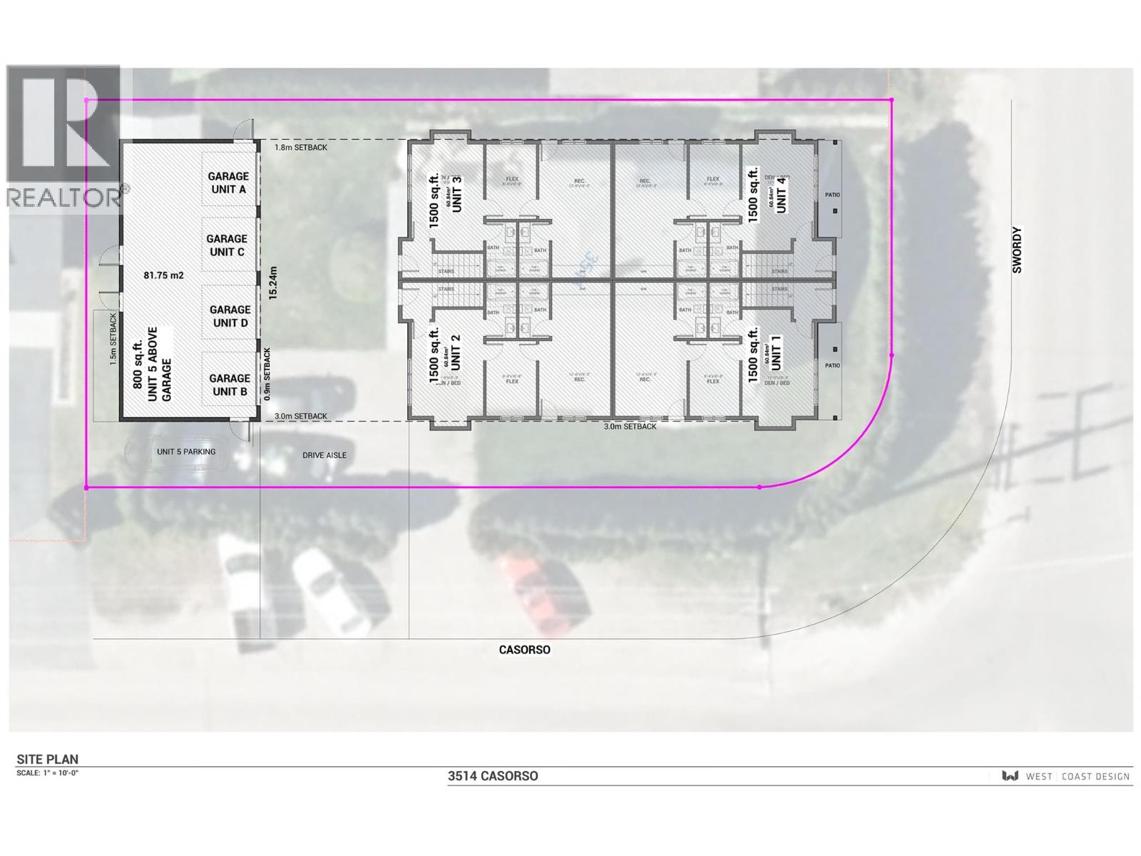
    An exceptional land opportunity just steps to Gyro Beach—one of the most coveted pockets of the Lower Mission. Set on a prominent corner lot, this property is all about future potential. The existing structure is not liveable and is currently in the permitting process with the City for demolition and removal, allowing a smooth transition for redevelopment. With impressive frontage, strong visibility, & access from multiple sides, the site provides the foundation for a high-value project. Even more compelling is the possibility for a land assembly with neighbouring Swordy Road properties, expanding the development scope and unlocking additional density options as this corridor continues to transform. This is a rare chance to secure a strategic piece of land in a premier beachside community—minutes to Okanagan Lake, schools, dining, recreation, and the vibrant amenities that define the Lower Mission. Opportunities of this calibre are exceptionally limited. Potential for development and buyers will need to perform their own due diligence to confirm with the city. *House is currently being demolished* (id:6770)

    Calculator Print

    Contact Us for More Information

    Ready to Meet?

    Want more information about the market or the process of buying or selling? Give us a shout! We'd be happy to help.

     

    Fill out my online form.