2010 sqft + 4 Bed + 3 Bath

2210 Horizon Drive Unit# 16 West Kelowna

$725,000
2210 Horizon Drive Unit# 16 - Photo 1
  • Price$725,000
  • MLS #10371446
  • Age2002
  • Size2010 sqft
  • Lot Size0.07 acres
  • Bedrooms4
  • Bathrooms3
  • ExteriorVinyl siding
  • CoolingCentral air conditioning
  • AppliancesRefrigerator, Dishwasher, Dryer, Range - Electric, Washer
  • WaterMunicipal water
  • SewerMunicipal sewage system
  • FlooringCarpeted, Ceramic Tile, Mixed Flooring, Vinyl
  • Property TypeSingle Family
  • RoofUnknown
  • Local AmenitiesRecreation
  • Stories3
  • Listing OfficeRoyal LePage Kelowna

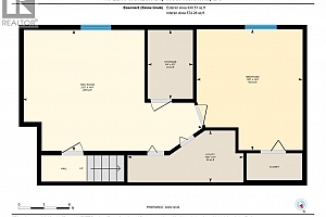
    Basement

    • Recreation room14'3'' x 21'2''
    • Utility room6'1'' x 8'3''
    • Storage8'2'' x 5'4''
    • Bedroom14'3'' x 12'6''

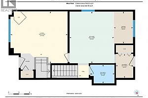
    Main level

    • Living room14'10'' x 16'3''
    • Dining room9'1'' x 5'5''
    • Partial bathroom5'4'' x 6'11''
    • Kitchen14'10'' x 12'7''

    Second level

    • 4pc Bathroom11'5'' x 8'2''
    • 3pc Ensuite bath6'7'' x 8'9''
    • Bedroom9'3'' x 10'1''
    • Bedroom9'3'' x 13'1''
    • Primary Bedroom15'0'' x 12'8''

    Welcome to #16 2210 Horizon Drive, a 4 bed 3 bath move-in-ready home located in the ultra family friendly neighbourhood of Horizon Lane. Tastefully updated & meticulously maintained, this perfectly situated “end unit” house exudes endless charm with a functional floorpan that can’t be beat! The main floor hosts a cozy living room complete with a gas fireplace that leads effortlessly into the bright & open kitchen/dining space. The recently updated kitchen showcases quartz countertops, a stylish backsplash, new stove & dishwasher, and island with an eat up bar - perfect for catching up with the kids! On the top floor you will find the beautifully updated main bathroom plus three of the bedrooms including the Primary that boasts a gorgeous 3pc ensuite. The fully finished basement features the fourth bedroom as well as multi purpose space that offers an opportunity to use it however your family desires! Moving outside the magic of this home continues as you are treated to an ample sized, fully fenced yard with an XL deck, garden space, and outdoor shed for added storage. This home also offers parking for 3 vehicles with back lane access. Horizon Lane is popular for good reason - the quiet, tree lined, no thru road is perfectly designed for biking & strolling and is absolutely ideal for growing families. The neighbourhood also features a children’s playground and Clubhouse for residents to use. Horizon Lane rarely has opportunities like this one, book your private showing today! (id:6770)

    Calculator Print

    Contact Us for More Information

    Ready to Meet?

    Want more information about the market or the process of buying or selling? Give us a shout! We'd be happy to help.

     

    Fill out my online form.