4035 Gellatly Road S Unit# 153

4035 Gellatly Road S Unit# 153

West Kelowna, British Columbia

$700,000
1609 sqft SQ FT
2 BED
2 BATH

Property Description

OPEN HOUSE: Sunday March 15 from 10 AM - 12 PM! In a lovely quiet location in Canyon Ridge, you will find this 2 bedroom plus den, 2 bath rancher style single-family home that exemplifies easy living! The front den is that perfect 'extra' space for your movie nights or quiet reading spot. Or for your office, if you prefer! The kitchen to dining to living room is vaulted and open concept, allowing lots of light in. The main area is in hardwood, the the former carpet in the den and bedrooms has all been replaced with durable vinyl plank flooring. (NO carpet in this home - great for allergy sufferers!) Most of the blinds have been replaced with custom remote motorized blinds - that work like a charm :) The primary bedroom is spacious, has windows to the rear yard, features a spacious ensuite with a walk-in shower and a large walk-in closet. The second bedroom is a nice size, and next to the main bath. Both baths have had the toilets replaced with comfort-height toilets. You'll also find the halls & doorways comfortably wide. The current owner had the entire home repainted, and it has been lightly lived in. The dishwasher was recently replaced, and the home has a central vacuum system. The hot water tank was replaced about 5-6 years ago. The laundry room has great space for storage, the double garage has more storage space, plus there's a large 4ft crawl space. Lovely private yard. Canyon Ridge also features an inviting clubhouse - it's a great community to call home! (id:6770)

Overview

Price $ 700,000
MLS # 10371487
Age 2007
Size 1609 sqft
Lot Size 0.1 acres
Bedrooms 2
Bathrooms 2
Exterior Other
Cooling Central air conditioning
Appliances Refrigerator, Dishwasher, Dryer, Range - Electric, Washer
Water Municipal water
Sewer Municipal sewage system
Flooring Ceramic Tile, Hardwood, Laminate, Linoleum
Property Type Single Family
Roof Unknown
Local Amenities Park, Recreation
Stories 1
Listing Office Century 21 Assurance Realty Ltd

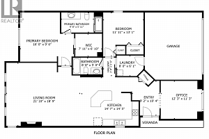
Main level

Foyer 10'4'' x 8'2''
4pc Bathroom 5' x 8'8''
3pc Ensuite bath 9'8'' x 6'0''
Laundry room 8'0'' x 6'0''
Den 11'3'' x 12'3''
Bedroom 12'0'' x 13'
Primary Bedroom 16'10'' x 9'6''
Kitchen 14'7'' x 14'5''
Living room 18'9'' x 21'10''
Contact Us for More Information

Property Information

4035 Gellatly Road S Unit# 153, West Kelowna

Price: $700,000

Property Type: Single Family

Building Type: House

MLS #: 10371487

Begin Your Journey

Whether you seek a waterfront sanctuary or an architectural masterpiece, let us guide you home.

Fill out my online form.