1770 Richter Street Unit# 302

1770 Richter Street Unit# 302

Kelowna, British Columbia

$480,000
864 sqft SQ FT
2 BED
2 BATH

Property Description

This top floor two-story loft at Central Green one offers a bright open layout with dramatic 18 foot ceilings and oversized tiered windows that flood the space with natural light. The kitchen is both functional and stylish featuring quartz countertops, stainless steel appliances with a built-in microwave, modern cabinetry and a generous double sink and a tile backsplash. The main living area flows seamlessly to a private balcony while the main level also includes a second bedroom and a full bathroom, ideal for guests or a home office upstairs the loft level is dedicated to a spacious primary retreat with a walk-in closet, three-piece ensuite, and in suite laundry with full-size stacked washer and dryer. A rare inconvenient feature the home offers two separate entrances one on each level, making access, easy and flexible the unit comes complete with one underground, parking stall and a large storage locker located near the upper entry, pet friendly with restrictions and rental friendly located just steps from downtown amenities, restaurants, boutique, shops, professional services, and transit. This is loft living at its best. (id:6770)

Overview

Price $ 480,000
MLS # 10373466
Age 2017
Size 864 sqft
Lot Size 0.9 acres
Bedrooms 2
Bathrooms 2
Exterior Brick, Other
Cooling Wall unit
Appliances Range, Refrigerator, Dishwasher, Microwave, Washer & Dryer
Water Municipal water
Sewer Municipal sewage system
Flooring Mixed Flooring
Property Type Single Family
Roof Unknown
Stories 2
Listing Office Sutton Group-West Coast Realty

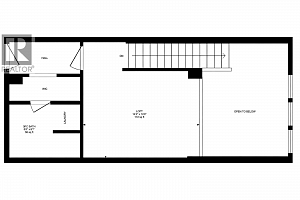
Main level

Bedroom 9'1'' x 10'6''
Living room 12'2'' x 14'6''
4pc Bathroom 8'4'' x 5'9''
Kitchen 12'8'' x 10'

Second level

Primary Bedroom 14' x 14'
3pc Ensuite bath 8'6'' x 6'7''
Contact Us for More Information

Property Information

1770 Richter Street Unit# 302, Kelowna

Price: $480,000

Property Type: Single Family

Building Type: Apartment

MLS #: 10373466

Begin Your Journey

Whether you seek a waterfront sanctuary or an architectural masterpiece, let us guide you home.

Fill out my online form.