3534 sqft + 4 Bed + 4 Bath

5335 Big White Road Unit# 408 Big White

$1,800,000
5335 Big White Road Unit# 408 - Photo 1
  • Price$1,800,000
  • MLS #10373414
  • Age1999
  • Size3534 sqft
  • Lot Size0.9 acres
  • Bedrooms4
  • Bathrooms4
  • ExteriorCedar Siding, Stone, Stucco
  • AppliancesRefrigerator, Cooktop, Range - Gas, Humidifier, Hood Fan, Washer/Dryer Stack-Up
  • WaterPrivate Utility
  • SewerMunicipal sewage system
  • FlooringCarpeted, Hardwood, Tile
  • ViewMountain view, Valley view, View (panoramic)
  • Property TypeSingle Family
  • Local AmenitiesSki area
  • Stories1
  • Listing OfficeCentury 21 Assurance Realty Ltd

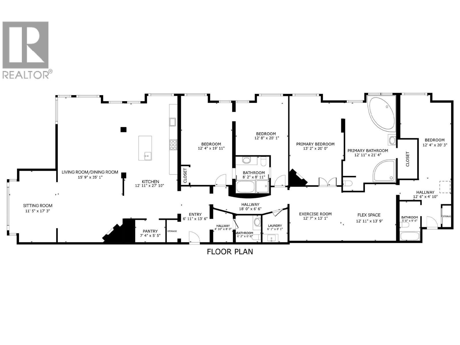
    Basement

    • Workshop25'9'' x 26'5''

    Main level

    • Bedroom12'4'' x 20'3''
    • Full bathroom5'0'' x 9'6''
    • Family room12'11'' x 13'9''
    • Exercise room12'7'' x 13'1''
    • Full ensuite bathroom12'11'' x 21'4''
    • Primary Bedroom13'2'' x 20'0''
    • Full bathroom8'2'' x 8'11''
    • Bedroom12'8'' x 14'1''
    • Bedroom12'4'' x 19'11''
    • Laundry room6'1'' x 8'1''
    • Partial bathroom6'2'' x 6'6''
    • Kitchen12'11'' x 27'10''
    • Mud room4'10'' x 8'0''
    • Foyer6'11'' x 13'6''
    • Pantry7'4'' x 5'5''
    • Den11'5'' x 17'3''
    • Living room15'9'' x 20'0''
    • Dining room15'9'' x 15'1''

    Located in the absolute best position at Big White Ski Resort, this exceptional top-floor, corner residence at Chateau Big White offers a location and view that are unmatched and truly unrivaled. Situated directly above the Plaza unload ramp in the heart of the Village, the condo enjoys spectacular panoramic views of the Monashee Mountains, ski runs, Main Village, and the resort’s iconic fireworks—views that cannot be duplicated anywhere else. Purpose-built for the original owner/developer, this 3,500+ sq ft residence is one of the largest condo units at Big White. Floor-to-ceiling windows flood the home with light and showcase the resort’s most dynamic vantage point. The chef’s kitchen features a Wolf griddle, 48” Ultraline/Viking gas range with double ovens, and a Sub-Zero refrigerator. With four bedrooms and four bathrooms, including an oversized primary suite with a massive ensuite and walk-in closet, the layout comfortably accommodates family and guests. Two wood-burning fireplaces create a warm alpine atmosphere, and this is the only pet-permitted unit in the building. Included is 1,180 sq ft of strata lot in Parkade 1, currently configured as three parking stalls and 665 sq ft of storage, with flexibility for alternative uses. Offering true ski-in/ski-out access and immediate Village amenities, this is a rare opportunity to own the premier condo at Big White. (id:6770)

    Calculator Print

    Contact Us for More Information

    Ready to Meet?

    Want more information about the market or the process of buying or selling? Give us a shout! We'd be happy to help.

     

    Fill out my online form.