206 Falcon Avenue

206 Falcon Avenue

Vernon, British Columbia

$285,000
1008 sqft SQ FT
3 BED
2 BATH

Property Description

Discover comfortable, modern living in Parker Cove, a leasehold lakeside community on Okanagan Lake just a short drive from Vernon, BC. This beautifully updated rancher offers 3 bedrooms and 1.5 bathrooms, ideal for relaxed main-floor living. Step inside to bright, inviting spaces featuring updated flooring and fresh paint throughout, with convenient laundry on the main level. A full crawlspace provides excellent additional storage, perfect for seasonal items and extra belongings. The private primary bedroom features double doors that open directly to your backyard patio, creating seamless indoor-outdoor living. The outdoor space includes a lovely patio area wired for a hot tub, ideal for summer evenings and entertaining. Upgrades include updated plumbing, a 200 amp electrical panel, and air conditioning for year-round comfort. The lease is in place until 2043. Enjoy everything Parker Cove offers; from beach access and boating on Okanagan Lake to a relaxed community atmosphere, making this home well suited for full-time living or seasonal enjoyment. (id:6770)

Overview

Price $ 285,000
MLS # 10374278
Age 1992
Size 1008 sqft
Lot Size 0.08 acres
Bedrooms 3
Bathrooms 2
Exterior Other
Cooling Heat Pump
Water Community Water System
Sewer Septic tank
Flooring Vinyl
View Mountain view
Property Type Single Family
Roof Unknown
Stories 1
Listing Office Royal LePage Downtown Realty

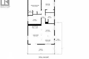
Main level

Bedroom 11'4'' x 8'5''
4pc Bathroom 7'8'' x 9'5''
Bedroom 11'3'' x 9'9''
2pc Ensuite bath 3'10'' x 3'11''
Primary Bedroom 11'3'' x 13'10''
Dining room 11'3'' x 7'0''
Kitchen 11'3'' x 10'10''
Living room 11'8'' x 16'1''
Contact Us for More Information

Property Information

206 Falcon Avenue, Vernon

Price: $285,000

Property Type: Single Family

Building Type: House

MLS #: 10374278

Begin Your Journey

Whether you seek a waterfront sanctuary or an architectural masterpiece, let us guide you home.

Fill out my online form.