8900 Jim Bailey Road Unit# 190

8900 Jim Bailey Road Unit# 190

Kelowna, British Columbia

$485,000
1372 sqft SQ FT
3 BED
2 BATH

Property Description

Welcome to Deer Meadows, a vibrant and well-connected neighbourhood just steps from the Rail Trail, offering direct access to Wood Lake and the crystal-blue waters of Kalamalka Lake. Enjoy miles of scenic trail systems stretching from Vernon to Kelowna, all while being only a quick 10-minute drive to Kelowna International Airport and UBCO. This thoughtfully designed Monarch home, built by Woodland Crafted Homes, features a modern layout and distinctive exterior appeal. Offering 3 bedrooms and 2 bathrooms, the design is ideal for those seeking both style and functionality. Enter through the bright front patio into an open-concept kitchen and highly sought-after seamless living and dining space—perfect for everyday living and entertaining. The guest bedroom and spacious primary suite are positioned at the rear of the home, creating optimal space distribution and added privacy. Unlike other models, this home includes a full garage, providing secure parking and additional storage. The secluded, fully fenced backyard is designed to capture maximum sunshine, allowing homeowners to fully enjoy the Okanagan lifestyle. Rentals and pets are permitted, and short-term rentals are allowed, making this an excellent opportunity for both homeowners and investors alike. (id:6770)

Overview

Price $ 485,000
MLS # 10374344
Age 2026
Size 1372 sqft
Lot Size 0.1 acres
Bedrooms 3
Bathrooms 2
Exterior Stone, Other
Cooling Central air conditioning
Appliances Refrigerator, Dishwasher, Range - Electric, Microwave
Water Well
Sewer Septic tank
Flooring Vinyl
Property Type Single Family
Roof Unknown
Local Amenities Airport, Park, Recreation, Schools, Shopping
Stories 1
Listing Office RE/MAX Kelowna

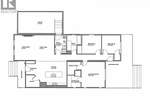
Main level

Bedroom 9'8'' x 10'0''
4pc Bathroom 5'0'' x 9'8''
Bedroom 9'6'' x 13'0''
Foyer 5'0'' x 5'0''
Dining room 10'0'' x 13'0''
Laundry room 6'0'' x 9'8''
3pc Ensuite bath 7'0'' x 7'6''
Primary Bedroom 12'2'' x 13'0''
Kitchen 17'0'' x 13'0''
Living room 12'0'' x 13'0''
Contact Us for More Information

Property Information

8900 Jim Bailey Road Unit# 190, Kelowna

Price: $485,000

Property Type: Single Family

Building Type: Manufactured Home

MLS #: 10374344

Begin Your Journey

Whether you seek a waterfront sanctuary or an architectural masterpiece, let us guide you home.

Fill out my online form.