1809 sqft + 3 Bed + 4 Bath

5280 Allenby Lane Kelowna

$895,000
5280 Allenby Lane - Photo 1
  • Price$895,000
  • MLS #10374878
  • Age1999
  • Size1809 sqft
  • Lot Size0.08 acres
  • Bedrooms3
  • Bathrooms4
  • ExteriorOther
  • CoolingHeat Pump
  • AppliancesRefrigerator, Dishwasher, Cooktop - Electric, Oven - Electric, Microwave, Hood Fan
  • WaterMunicipal water
  • SewerMunicipal sewage system
  • FlooringCarpeted, Laminate, Linoleum, Tile
  • Property TypeSingle Family
  • RoofUnknown,Unknown
  • Local AmenitiesPublic Transit, Park, Recreation, Schools, Shopping
  • Stories3
  • Listing OfficeRoyal LePage Kelowna

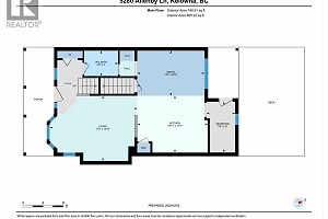
    Basement

    • Storage5'10'' x 9'2''
    • Gym12'10'' x 16'2''
    • 3pc Bathroom8'5'' x 4'4''
    • Family room14'9'' x 10'9''

    Main level

    • Mud room5'8'' x 10'
    • 2pc Bathroom6'8'' x 5'
    • Dining room8'10'' x 13'3''
    • Kitchen11'2'' x 13'11''
    • Living room12'10'' x 17'3''

    Second level

    • 4pc Bathroom7'11'' x 5'1''
    • 3pc Ensuite bath9'8'' x 5'
    • Laundry room5' x 7'6''
    • Bedroom10'3'' x 9'8''
    • Bedroom11'1'' x 10'1''
    • Primary Bedroom13'4'' x 14'8''

    On the Park in Kettle Valley – Location, Lifestyle & Value Welcome to this beautifully maintained, one-owner home built by Worman Homes, ideally situated right on Main Street Park in the heart of Kettle Valley. Enjoy the ultimate Okanagan lifestyle with coffee shop, pizza, restaurant, and neighbourhood amenities just steps from your door, and a quick walk to the local elementary school. This thoughtfully designed home offers 3 bedrooms (easily converted to 4) and 3½ bathrooms, making it perfect for families or those needing flexible living space. Laundry is conveniently located on the top floor, adding everyday ease. The partially finished basement features a spacious family room, bathroom, ample storage, and room to add an additional bedroom, office, or hobby space. Outside, the fully fenced backyard is ideal for kids and pets, highlighted by a huge deck perfect for entertaining or relaxing. Additional features include an oversized two-car garage with a dedicated storage room, new hot water tank, and a newer furnace, offering peace of mind and long-term value. This is a rare opportunity to own a park-side home in one of Kelowna’s most sought-after family communities. (id:6770)

    Calculator Print

    Contact Us for More Information

    Ready to Meet?

    Want more information about the market or the process of buying or selling? Give us a shout! We'd be happy to help.

     

    Fill out my online form.